- 10 ton kapasiteli hidrolik flanş ayırma cihazı
- Modeline göre harici ya da dahili pompalı
- Ayak mesafesi 104-216 mm arasında ayarlanabilir
- 700 barda maksimum ayırma kuvveti üretir
- Hidrolik sistem tek etkili ve yay dönüşlüdür
- Bakım, onarım ve devreye alma işleri için ideal
- Kullanımı basittir, tek kişi tarafından kullanılır
- Yüksek ayırma kuvveti için ikili set tavsiye edilir
- Her cihaz güvenlik takozu ile sevk edilmektedir
- POWERRAM marka, 2 yıl garantili, CE ve ISO belgelidir
10 Ton Hidrolik Flanş Ayırma Ekipmanı
700 bar maksimum çalışma basıncına sahip hidrolik PFS serisi flanş ayırma ekipmanları, özellikle petrol ve doğalgaz boru hatlarında tercih edilmektedir. Tonajın fazla olduğu durumlarda ikili set kullanılması tavsiye edilir. İkili set ile 20 tonluk ayırma kuvveti elde edilir.
İş güvenliği kriterlerini en üst düzeyde sağlayan hidrolik flanş ayırıcılar çalışma sırasında kıvılcım-parlama gibi riskler oluşturmaz.
Dahili Pompalı 10 Ton Hidrolik Flanş Ayırma Cihazı
PFS10TI kodlu dahili pompalı hidrolik flanş ayırma cihazı, herhangi bir pompa hortum ve bağlantı elemanına gerek duymadan çalışır. Böylece çalışma ortamı dağılmaz ve tüm işlem tek parçadan oluşan bu hidrolik flanş ayırıcı ile yapılır. Kullanımı kolay ve pratiktir. İşi hızlandırır ve maliyeti düşürür.
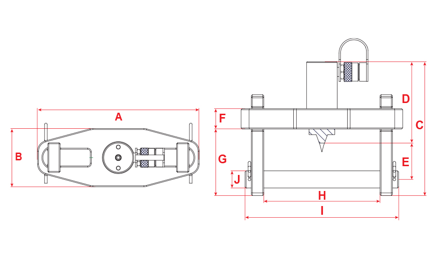
| Parça | Açıklama | Uygun Flanş Kalınlığı | Saplama | Çene Ölçüsü | Kapasite | Stroke | Ağırlık |
| No. | # | mm | Ölçüsü (mm) | Uç-Arka (mm) | Ton | mm | kg |
| PFS10T | Tek Ayırıcı | 216 | 31,75-41,44 | 3,3-28,7 | 10 | 51 | 15 |
| PFS10TBG | Tekli Set | 216 | 31,75-41,44 | 3,3-28,7 | 10 | 51 | 25,2 |
| PFS10TBG MAX | İkili Set | 216 | 31,75-41,44 | 3,3-28,7 | 10×2 | 51 | 46,6 |
| PFS10TI | Dahili Pompalı | 216 | 31,75-41,44 | 3,3-28,7 | 10 | 51 | 17,5 |
| Parça | Ölçüler (mm) | |||||||
| No. | A | B | C | F | G | H | I | J |
| PFS10T | 300 | 108 | 248 | 38 | 124 | 216 | 285 | 31,75 |
| PFS10TBG | 300 | 108 | 248 | 38 | 124 | 216 | 285 | 31,75 |
| PFS10TBG MAX | 300 | 108 | 248 | 38 | 124 | 216 | 285 | 31,75 |
| PFS10TI | 300 | 108 | 375 | 38 | 124 | 216 | 285 | 31,75 |
Zaman Kazandıran Güvenli Flanş Ayırma İşlemi
Powerram PFS serisi flanş ayırma ekipmanları 10 tonluk ayırma kapasitesi ile 3,3 mm boşluktan itibaren ayırma işlemi yapar.
Tek operatör ile işlem gerçekleştirilir. Devreye alma süresi kısaltır, hem zamandan hem de maliyetten tasarruf ettirir.
Detaylar için bizimle iletişime geçebilirsiniz.
Flanş Ayırıcı Kullanım Alanları
- Doğalgaz Boru Hatları
- Petrol Boru Hatları
- Akaryakıt Boru Hattı
- Su Boru Hatları
- Eşanjör Bağlantıları
- Kimyasal Taşıma Hatları
- Vana Değişim İşleri
- Sızdırmazlık Test Uygulamaları
- Yıllık Bakım-Onarım İşleri
- Akışkan Hatları Kurulumu
- Keçe ve Conta Değişimi




